レッジョまみれ IN イタリア vol.01
INDEX
目次
251025 – 251031
海外最新保育事情視察ツアー 2025
「レッジョ・ネレミリア」はイタリアの北部、エミリア=ロマーニャ州にある内陸の街です。
上空から見ると六角形をしたレッジョ旧市街には、16~17世紀の建物が立ち並び、美しい景観を保っています。
チーズの「パルミジャーノ・レッジャーノ」で有名なこの街では、どのような環境で子どもたちの教育が行われているのでしょうか。
Nido scuola Choreia
( ニド・スコーラ・コレイア )

子どもたちに様々な環境を与える
子どもの探求心に価値を与えるために、異なるアイデンティティを備えたあらゆる空間(ミニアトリエ)で、0~6歳児までを継続して教育を行っています。平日(月曜~金曜)の午前7時から午後4時まで子どもたちをあずかります。
4ヶ月~18ヶ月のクラスに12名、19ヶ月~32ヶ月のクラスに18名、そして3~5歳のクラスは2クラスあり27名ずつの計54名と、合わせて84名が通うことができます。

大きな窓は空間を非常に明るくし、常に外部との関係性を保ちます。また、0歳から6歳まで6年間行う教育には継続性があります。
内壁の色々なところに言葉が書いてあり、子どもたちはぐるぐると歩き回って言葉を探して遊んでいました。

週1回、子ども達がコーヒーをふるまう「朝カフェプロジェクト」があり、誰でも参加することができます。
Reggio Emilia Approach
ここは「レッジョ・エミリア・アプローチ」と呼ばれる空間構成で、「子どもの権利」「空間の美的、物理的な質」「子どもと大人の関係の質」を意識した場所になっています。

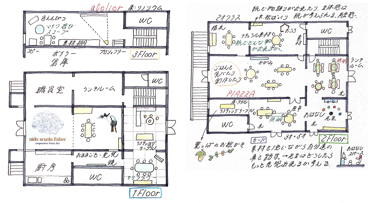
Nido scuola Faber
( ニド・スコーラ・ファイバー )

自然とデジタルを融合させた教育
園名は、平等やシェア、共感を詩的に語るイタリアのシンガーソングライター「ファイバー」から取られました。建物は18世紀に個人宅として建てられ、その後小学校として使用されていたものです。
12ヶ月~24ヶ月のクラスに21名、4歳と5歳ミックスのクラスに27名、3歳と5歳ミックスのクラスに27名の、合わせて75名が通えます。
ここでは自然とデジタル環境を組み合わせた研究的な教育を行っています。デジタルツールの存在は、創造性、開放性、好奇心や遊ぶ楽しさなどの、子どもの環境に対する大きな感受性と合わさり、文脈を持った発見をサポートしてくれます。


Nido Giulia Maramotti
( ニド・ジュリア・マラモッティ )

乳幼児のための開放的な設計
Max Mara(ジュリア・マラモッティ財団)が建設して市に寄付した施設です。その運営をPantaReiという団体が行っており、若手建築家によるコンペで設計者を選定したというユニークな経緯もあります。
ここは3ヶ月~12ヶ月、12ヶ月~18ヶ月、19ヶ月~23ヶ月、24ヶ月~32ヶ月と細かくクラスを分け、合わせて78名が通えます。平日(月曜~金曜)の午前7時から午後4時までで、定員のうち30名はMaxMaraの社員の子どもたちです。


園舎がメインストラクチャーであり、外に行くに従って軽くなっていくイメージです。1年の異なる季節でも柔軟にスペースを利用できるように、可動式ライト構造があります。閉鎖された環境から開放的な環境へ、柔軟で知覚的かつ刺激的に移行することができます。
移動教室は探究するテーマにより変化します。植物、ロープ、光、パネル…全てのスペースが他のスペースと繋がっていることで、空間同士の関係性が成り立ち、「人と人」の関係性にも繋がっています。窓ガラスが多い透明性の高い空間は対話をする上でも大切で、伝達の透明性にも影響を与えているのです。

Nido scuola Eni 06
( ニド・スコーラ・エニ 06 )

自然環境を大切にする園舎
ENI(石油ガス会社)の福祉プロジェクトの一環として2010年に設立されました。保育園は0歳~3歳までの60名、幼稚園は4歳~6歳までの130名が通います。
園舎の構造は、周りの自然環境に関することを驚きを通して学べるように配慮されています。環境の持続可能性の問題に注意を払うことで、子どもの遊び、親の家庭教育双方のニーズに応えることを目的としています。

【写真1】ビュッフェスタイルのランチでは、お気に入りの食器で好きな物を食べるというスタイルで個性を尊重します。
【写真2】イタリアでは、石造の建物でも梁は木を使用し、その上に木板を貼って床(屋根)の下地を造ることが多いようです。写真のドゥカーレ宮殿(Venezia)では、その上にテラゾタイルを敷いています。
Nido Scuola Cusago Leonardo da Vinci
( ニド スコーラ クサーゴ レオナルド ダ ヴィンチ )

ダ・ヴィンチの名を冠した自由な環境
園名は多才で有名な「レオナルド・ダ・ヴィンチ」からきています。同園では幼児教育サービスはもちろん、障害のある子どもや家庭へのサポートも行っています。環境、多様な文化、SDGsにも配慮し、同時に研修やコンサルティングの事業まで広く展開しています。
イタリアのクサーゴという地域は農業が盛んな地域で、米やトウモロコシを栽培していることから、おままごとでも地域産の野菜等が使われるというこだわりがあります。
定員は180名で、2025年12月現在で0歳~3歳児が58名、4歳~6歳児は119名が通う人気ぶりです。

ロリス・マラグッツィ
( インターナショナルセンター )

ベンチュリーニ・バルディーニ・ワイナリー
( レッジョ・エミリアのワイナリー )

イタリアの園舎は園児と共に生きている
園舎の中に自然や光を取り入れるスタイルでは、季節によって、また時間帯によって風景や光の角度が変化します。それは、建物に映る色や印象が変わることになり、さらには子どもたちに与える印象までもが変わることになります。そんな園舎の中で育つ子どもたちは、多様な感性を育み、さまざまな感情を備えることでしょう。
用意された建物の中で教育を受けるだけではなく、自然と同化した園舎で過ごすことで、周囲の環境を敏感に察知し、心も豊かになるのではないかと考えます。
イタリアの国民性は、陽気でポジティブ、他人に寛容だと言われています。開放的な空間で多様性を認め合うことを幼いころから学ぶ事が、明るいイタリアの人々の性格に繋がっているのかも知れません。



